中央区由野台1丁目 新築戸建 2棟
価格4,399万円~4799万円
| 所在地 | 相模原市中央区由野台1-12-11 | 土地面積 | 88.93m²(26.9坪) ~89m²(26.92坪) |
建物面積 | 88.59m²(26.79坪) ~88.86m²(26.88坪) |
|---|---|---|---|---|---|
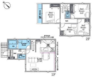
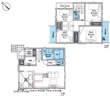
| 交通 | JR横浜線「淵野辺」駅 徒歩14分 | 間取 | 3LDK | 築年月 | 令和8年3月 |
![]()
JR横浜線『淵野辺』駅徒歩14分!小学校まで徒歩4分!安心の子育て環境♪
お子様の成長に合わせて、将来間取り変更しやすい仕様になっています!(3LDK→4LDK)
対面式システムキッチンで家族の会話が広がります♪
食洗機付きで家事の負担を減らして、自分時間や家族時間をプラスに♪
| 総戸数 | 全2棟/今回販売 2棟 | 構造・規模 | 木造 2階建 |
|---|---|---|---|
| 建築確認番号 | 第25UDI1W建07859号、他号 | 用途地域 | 第一種低層住居専用地域 |
| 現況 | 建築中 | 引渡時期 | 相談 |
| 建ぺい率 | 50% | 容積率 | 100% |
| 土地権利 | 所有権 | 地目 | 宅地 |
| 都市計画 | 市街化区域 | 取引態様 | 媒介 |
| 小学校区 | 共和小学校(270m) | 中学校区 | 由野台中学校(1000m) |
| 設備・こだわり | 角地、床下収納、都市ガス、本下水、浴室乾燥機、温水洗浄便座、オートバス、洗髪洗面化粧台、食器洗浄乾燥機、浄水器 | ||
| 備考・制限等 | ●共和小学校・・・約270m(約4分) ●由野台中学校・・・約1000m(約13分) ●ビッグ・エー・・・約550m(約7分) |
||






























